티스토리 뷰
목차
2024년 강남 3구에 래미안 아파트가 대거 분양 예정입니다.
래미안 원페를라, 래미안 원펜타스, 래미안 트리니원까지 24년 상반기부터 하반기까지 분양 래미안 브랜드 아파트 분양정보를 모두 확인해보시기 바랍니다.
아래에서 빠르게 신청 가능하니 참고해 활용해보시기 바랍니다.
래미안 원페를라 일반분양
래미안 원페를라는 서울 방배동 방배 6구역을 재개발하여 분양하는 아파트입니다. 총 1097세대 중 50%에 달하는 465세대를 일반분양 예정으로 많은 분들의 청약 참여율이 매우 높을 것으로 보입니다.

분양일정은 24년 상반기로 예정되어 있으며, 입주는 25년 4월입니다. 지하 4층에서 지상 최고 22층까지 총 16개 동으로 입주 이후에는 방배동 대장아파트로 손색이 없습니다.
래미안 원페를라 일반분양 정보
1. 분양일정 : 24년 상반기 예정
2. 입주일정 : 25년 4월 예정
3. 분양규모 : 총 1,097세대 중 일반분양은 465세대
1) 59㎡ : 141세대
2) 84㎡ : 324세대
래미안 원페를라는 서울특별시 서초구 방배동 818-14에 위치하며 지하철 7호선 내방역과 총신대입구역 사이에 위치한 역색권 아파트입니다.
편의시설 및 교육인프라가 확보되어 있어 생활편의성, 거주만족도가 매우 높습니다.
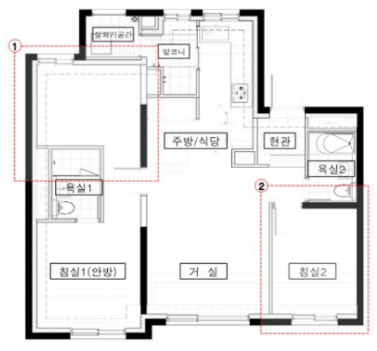
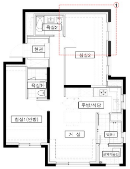
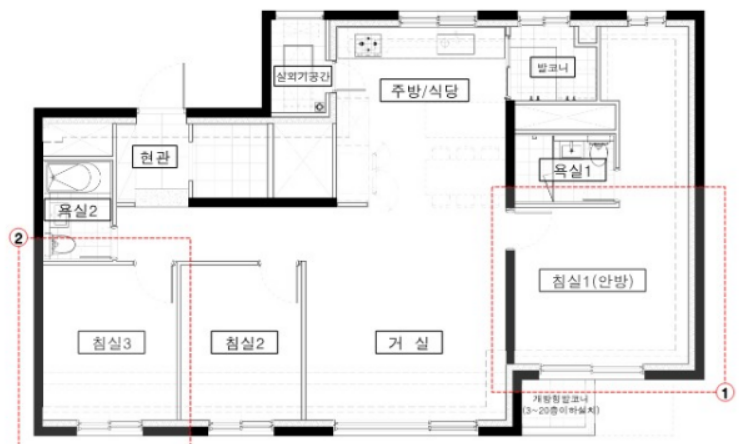
평면도
래마인 원페를라는 후분양단지로 분양가 상한제입니다. 59㎡, 84㎡ 일반분양 물량이 많고 분양가도 낮게 책정될 수 밖에 없어 매력적인 아파트입니다.
59㎡ 타입



84㎡ 타입




분양가
래미안 원페를라 인근 신축 아파트로는 방배그랑자이와 방배서리풀e편한세상이 있습니다. 해당 아파트 34평의 시세는 21~22억 수준으로 형성되어 있습니다.
래미안 원페를라 평당 예상 분양가는 약 6,000만 원 수준이므로 34평 예상 분양가는 17억 원 정도로 예상됩니다.
안전마진은 약 5억정도이며, 부동산 경기에 따라 더 높은 시세 차익을 충분히 기대할 수 있습니다.
함께 보면 좋은 글
래미안 원펜타스 일반분양 분양가 평면도 알아보기
래미안 원펜타스 일반분양, 예상 분양가, 평면도 정보를 안내해 드리겠습니다. 래미안 원펜타스는 누구나 갖고 싶은 아파트이지만, 후분양 아파트이기 때문에 현금부자들만 신청할 수 있는 아
thinkharderich.com
래미안 트리니원 일반분양 평면도 배치도 분양가 알아보기
반포 주공 1단지 3주구 재건축 아파트 래미안 트리니원 일반분양 정보와 평면도, 배치도, 예상 분양가에 대해 알아보겠습니다. 입지 및 개요 래미안 트리니원의 뜻은 트리니티(Trinity)인 삼위일체
thinkharderich.com
부동산 아파트 시세 비교 조회 사이트 추천 꿀팁
사회초년생이나 신혼부부, 그리고 아파트를 상급지로 갈아타기를 준비하시는 분이라면 부동산 아파트 시세를 온라인으로 비교하여 찾아볼 수 있습니다. 아파트 시세 조회 비교사이트 호갱노노
thinkharderich.com

'부동산' 카테고리의 다른 글
| 디에이치 대치 에델루이 아파트 분양세대 평면도 청약정보 (0) | 2024.03.01 |
|---|---|
| 2024년 서울 청약 예정 로또 아파트 총정리 (0) | 2024.02.29 |
| 도봉 금호어울림 리버파크 무순위 줍줍 분양가 평면도 대출 조건 (1) | 2024.02.27 |
| 신혼부부 주택구입 신생아특례대출 추천 아파트 알아보기 (0) | 2024.02.26 |
| 경희궁 유보라 아파트 오피스텔 분양가 평면도 알아보기 (0) | 2024.02.25 |