티스토리 뷰
목차
2024년 3월 분양예정 단지 중 디에이치 대치 에델루이 아파트에 대한 분양세대, 평면도, 청약정보를 안내해 드리겠습니다.
디에이치 대치 에델루이 아파트 분양세대
디에이치 대치 에델루이는 총 6개동 282가구 중 일반분양은 79가구입니다. 인근에 위치한 대치푸르지오써민과 대치 르엘과 함께 분양가상한제 지역으로 청약 시 높은 경쟁률이 예상됩니다.
대치동 디에이치 대치 에델루이
1. 위치 : 서울시 강남구 대치동 1012-56
2. 분양규모 : 총 273세대 중 79세대
3. 분양일정 : 2024년 3월 예정
4. 입주일정 : 2025년
| 타입 | 세대수 | 일반분양 |
| 59㎡ | 97세대 | 79세대 |
| 72㎡ | 7세대 | |
| 73㎡ | 1세대 | |
| 84㎡ | 128세대 | |
| 91㎡ | 7세대 | |
| 94㎡ | 8세대 | |
| 125㎡ | 34세대 |
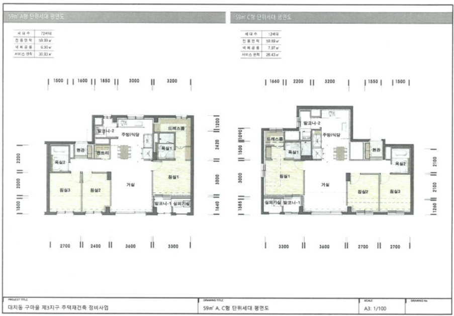
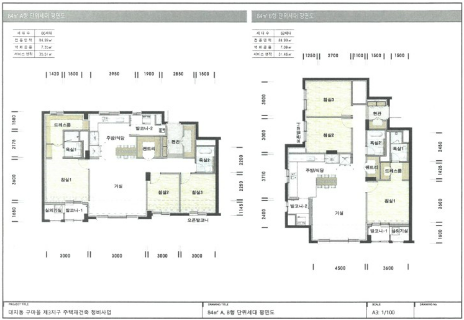
평면도
59㎡


84㎡

청약정보, 예상분양가
디에치 에델루이는 투기과열지구 분양가상한제 지역입니다. 세대주 청약이 가능하며, 전매제한 3년, 재당첨제한 10년 조건으로 청약 진행될 예정입니다.
24년부터 중소형 평수에 가점제 비율이 높아졌기 때문에 기본 청약신청조건인 24개월 예치금 1순위 조건만 만족한다면 충분히 도전해볼만한 아파트입니다.
| 타입 | 비율 |
| 59㎡ | 가점제 40%, 추첨제 60% |
| 84㎡ | 가점제 70%, 추첨제 30% |
또한, 1순위 청약요건을 만족하였다면, 당첨 시 자금상황도 고려해보셔야 합니다.
물론 분양가와 무관하게 중도금 대출이 가능하지만, 최근 스트레스 DSR 도입으로 가산금리 적용 시 예상보다 대출한도가 낮게 진행될 수 있습니다.

아파트 소재지가 언덕에 있다는 점이 아쉽지만, 삼성역이 매우 가까워 도보권이고, 휘문고를 비롯한 휘문중, 대명중, 단대부고, 진선여고까지 명문학교가 가깝기 때문에 학군지로서 상당한 메리트가 있습니다.
분양가상한제로 예상 분양가는 평당 6,000만 원 수준이며, 59㎡은 14억 원, 84㎡은 20억 원으로 예상됩니다.
인근 대치 구마을 1지구 대치 푸르지오 써밋의 경우 84㎡의 호가가 30억 수준이므로 약 10억 원의 시세차익을 기대할 수 있습니다.
함께 보면 좋은 글
2024년 3월 서울 청약 예정 로또 아파트 총정리
2024년 3월은 오랜시간 기다려온 서울 강남권 요지의 아파트 분양 시장이 시작되는 시기입니다. 특히, 서초구 반포 래미안 원펜타스를 비롯하여 디에이치 대치 에델루이, 용산 더 파크사이드 서
thinkharderich.com
래미안 원페를라 아파트 일반분양 평면도 분양가
2024년 강남 3구에 래미안 아파트가 대거 분양 예정입니다. 래미안 원페를라, 래미안 원펜타스, 래미안 트리니원까지 24년 상반기부터 하반기까지 분양 래미안 브랜드 아파트 분양정보를 모두 확
thinkharderich.com
네이버 부동산 실거래가 조회 사이트 추천 꿀팁
아파트 시세 파악 시 필수로 조사해야 하는 부동산 실거래가 조회 사이트 정보를 안내해 드리겠습니다. 보통 온라인으로 아파트 시세파악을 할 때, 가장 많이 이용하는 사이트는 네이버 부동산
thinkharderich.com

'부동산' 카테고리의 다른 글
| 청담 르엘 일반분양 분양가 입주 모델하우스 평면도 (0) | 2024.03.03 |
|---|---|
| 2024년 3월 수도권 분양 아파트 청약 신청하기 (1) | 2024.03.03 |
| 2024년 서울 청약 예정 로또 아파트 총정리 (0) | 2024.02.29 |
| 래미안 원페를라 아파트 일반분양 평면도 분양가 (0) | 2024.02.28 |
| 도봉 금호어울림 리버파크 무순위 줍줍 분양가 평면도 대출 조건 (1) | 2024.02.27 |