티스토리 뷰
목차
24년 강남권 로또 분양으로 불리는 청담 르엘의 일반분양 정보와 분양가, 입주, 평면도에 대해 안내해 드리겠습니다.
23년까지 이어진 아파트 값 상승으로 건설사들이 분양이 미뤄져 왔던 것 과 달리 24년에 들어 부동산이 침체되면서 강남 노른자 위치에 재건축 아파트들이 일반 분양을 예정하고 있습니다.
분양가 상한제 적용을 받는 대형 브랜드 아파트들이 쏟아질 예정입니다. 아래에서 자세한 청약정보를 확인해 보실 수 있으니 참고해 활용해 보시기 바랍니다.
청담 르엘 일반분양 입주 정보
| 위치 | 서울시 강남구 청담동 134-18 일원 |
| 규모 | 지하4층 ~ 지상35층 9개동 |
| 세대수 | 총 1,261세대 |
| 일반분양 | 총 176세대 59타입 60세대 84타입 91세대 171타입 1세대 203타입 1세대 235타입 1세대 |
| 입주 | 2025년 9월 |
청담르엘은 청담삼익아파트를 재건축한 아파트로 바로 옆 청담자이와 함께 청담동 입지에 한강조망을 확보한 아파트로 찐 부자들의 많은 관심과 기대를 받고 있습니다.
하지만 한강조망 조합원들이 가져갔을 것으로 예상되며 일반분양 물량은 거의 없을 것으로 보입니다. 다만 세대의 70%가 한강조망 가능기에 모집 공고 이후 정확한 정보를 확인할 수 있겠습니다.
청담르엘은 투기과열지구이면서 분양가 상한제 적용지역입니다. 청약 전에 아래에서 청약 정보를 확인해 보시기 바랍니다.
1. 청약 1순위 조건은 만 19세 이상 무주택 세대주로 세대원 모두 5년 내 청약 당첨 사실이 없어야 합니다.
2. 청약통장 가입기간은 24개월 이상이며, 아래 예치금 조건이 충족되어야 합니다.
| 구분 | 예치금 |
| 85타입 | 300만원 |
| 102타입 | 600만원 |
| 135타입 | 1,000만원 |
| 모든 면적 | 1,500만원 |
3. 청약 당첨 시 재당첨제한 10년, 전매제한 3년 조건입니다. 최근 실거주 의무 조건이 유예되여 3년간 전세가 가능합니다.
청담르엘은 7호선 청담역 초역세권이고 9호선 봉은사역도 도보권으로 교통이 매우 좋습니다. 또한, 인근에 봉은초, 봉은중, 경기고등 명문하교가 인접하여 학군도 뛰어난 지역입니다.
물론 생활인프라 및 편의시설 청담, 압구정 권역에 있는 코엑스, 압구정 갤러리아, 롯데백화점 강남점, 현대백화점 압구정점을 모두 이용 가능합니다.
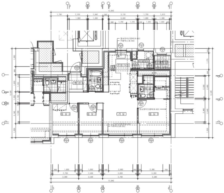
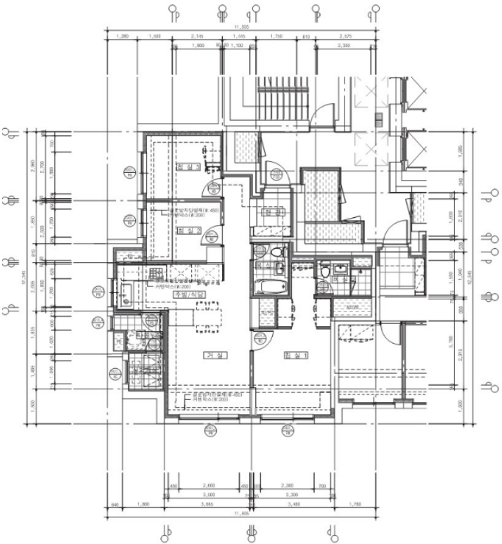
평면도
청담 르엘은 고급 브랜드 이미지에 맞게 아파트내 커뮤니티를 고급화 전략으로 설계하여 주민들의 편의시설을 제공합니다.

59 타입


84 타입



예상 분양가 입주
예상 분양가는 평당 6,000만 원으로 인근 청담자이 33평 시세 최근 실거래가 30.5억이고, 래미안라클래시 3년 차 신축아파트 34평 최근 실거래가가 33.1억임을 고려할 때 안전마진은 약 10억으로 추산됩니다.
| 타입 | 예상 분양가 |
| 59㎡ | 15억 |
| 84㎡ | 22억 |
함께 보면 좋은 글
디에이치 대치 에델루이 아파트 분양세대 평면도 청약정보
2024년 3월 분양예정 단지 중 디에이치 대치 에델루이 아파트에 대한 분양세대, 평면도, 청약정보를 안내해 드리겠습니다. 아파트 청약 신청하기 디에이치 대치 에델루이 아파트 분양세대 디에이
thinkharderich.com
2024년 3월 수도권 분양 아파트 청약 신청하기
2024년 3월 수도권 분양 예정 아파트 청약 정보를 안내해 드리겠습니다. 사실 3월은 청약홈 홈페이지를 대대적으로 개편하면서 3월 4일부터 22일까지 아파트 청약이 약 3주간 신규 입주자 모집공고
thinkharderich.com
래미안 원페를라 아파트 일반분양 평면도 분양가
2024년 강남 3구에 래미안 아파트가 대거 분양 예정입니다. 래미안 원페를라, 래미안 원펜타스, 래미안 트리니원까지 24년 상반기부터 하반기까지 분양 래미안 브랜드 아파트 분양정보를 모두 확
thinkharderich.com

'부동산' 카테고리의 다른 글
| 건축물대장 열람 무료 발급하는 곳 (0) | 2024.03.04 |
|---|---|
| 2024년 3월 수도권 분양 아파트 청약 신청하기 (1) | 2024.03.03 |
| 디에이치 대치 에델루이 아파트 분양세대 평면도 청약정보 (0) | 2024.03.01 |
| 2024년 서울 청약 예정 로또 아파트 총정리 (0) | 2024.02.29 |
| 래미안 원페를라 아파트 일반분양 평면도 분양가 (0) | 2024.02.28 |