티스토리 뷰
목차
반포 주공 1단지 3주구 재건축 아파트 래미안 트리니원 일반분양 정보와 평면도, 배치도, 예상 분양가에 대해 알아보겠습니다.
입지 및 개요
래미안 트리니원의 뜻은 트리니티(Trinity)인 삼위일체 3박자(교통, 학군, 생활)를 One의 단 하나 중요한 것이라는 의미를 갖고 있습니다.
반포 주공 1단지 1,2,4주구를 통합 재개발하는 반포디에이치클래스트과 맞닿아 있어 생활 인프라를 공유하고 있어 반포디에이치클레스트 5000세대, 래미안 트리니원 2000세대 통합 7,000세대의 시너지 효과가 기대됩니다.
아래에서 래미안 트리니원을 비롯한 반포 일대 주요 단지를 확인해 볼 수 있습니다.
래미안 트리니원 일반분양
래미안 트리니원은 총 2,091세대 중 일반 분양을 505세대로 진행됩니다. 주력 분양 타입은 59㎡으로 총 456세대로 가점 40%, 추천 60% 비율로 적용되어 분양됩니다.
| 타입 | 분양세대 | 비율 |
| 59㎡ | 456세대 | 가점 : 40% 추첨 : 60% |
| 84㎡ | 49세대 | 가점 : 70% 추첨 : 30% |
평면도 배치도
래미안 트리니원은 지하철 9호선 구반포역에 인접해 있습니다. 현재는 지하철 출구가 없지만 입주 시 4번 출구를 단지 내로 연결할 예정이라고 합니다.
인근 편의시설은 신세계백화점을 비롯하여 센트럴시티, 서울고속버스터미널이 위치해 있고 이랜드리테일, 이마트, 롯데마트등 도보권에 쇼핑시설이 인접해 있습니다.
또한, 반포한강공원, 반포천을 끼고 있어 산책이나 여유로운 주거환경을 충분히 누릴 만한 입지이며, 교육시설은 명문학교인 반포초, 반포중, 덜위치칼리지 서울영국학교, 세화중, 세화고, 세화여고가 있어 매우 훌륭합니다.
반포지역 주변 아파트 시세로 볼 때, 래미안 트리니원은 평당 1억 초중반 수준으로 분양가를 예상하고 있습니다.

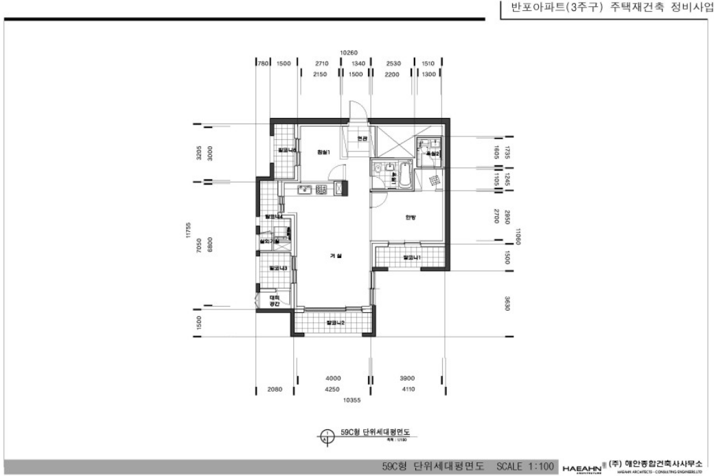
59A, 59A1, 59B, 59C 평면도
59 타입은 일반분양에서 가장 많은 세대인 456세대 공급됩니다. 타입별 평면도는 다음과 같습니다.




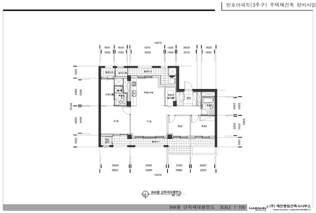
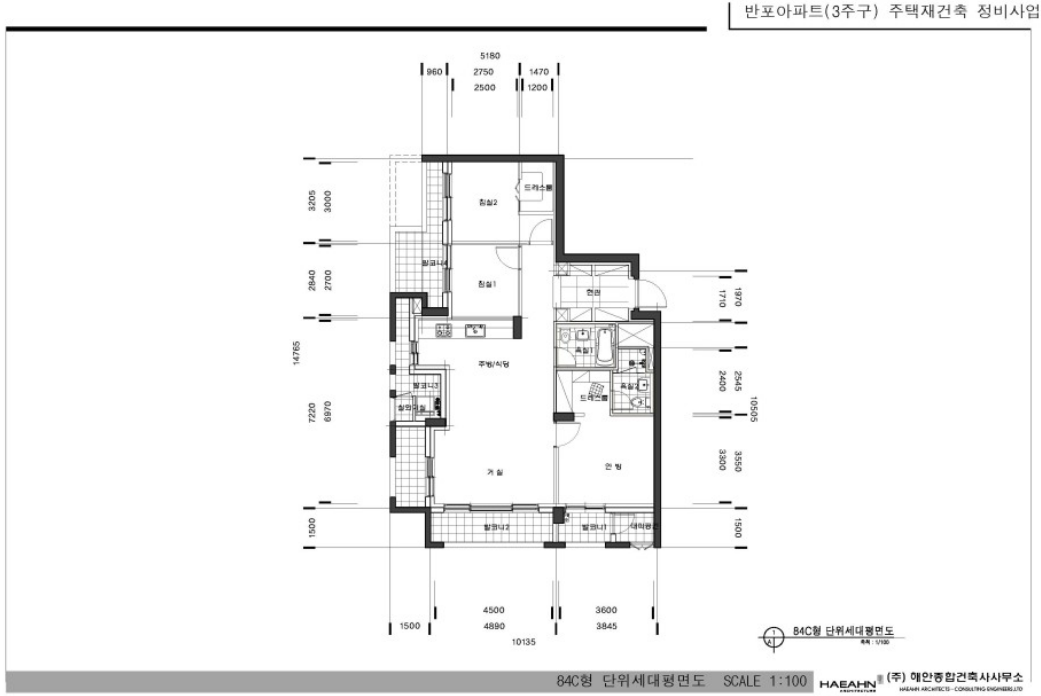
84A, 84B, 84C 평면도
84 타입은 49세대가 공급될 예정입니다. 타입별 평면도는 다음과 같습니다.



함께 보면 좋은 글
래미안 원펜타스 일반분양 분양가 평면도 알아보기
래미안 원펜타스 일반분양, 예상 분양가, 평면도 정보를 안내해 드리겠습니다. 래미안 원펜타스는 누구나 갖고 싶은 아파트이지만, 후분양 아파트이기 때문에 현금부자들만 신청할 수 있는 아
thinkharderich.com

'부동산' 카테고리의 다른 글
| 네이버 부동산 실거래가 조회 사이트 추천 꿀팁 (0) | 2024.02.21 |
|---|---|
| 강남 개포 디에이치퍼스티어 아파트 무순위 청약 줍줍 분양 (0) | 2024.02.20 |
| 마포자이 힐스테이트 일반분양 일정 분양가 평면도 모델하우스 (1) | 2024.02.20 |
| 청년주택드림청약통장 자격 가입조건 전환방법 은행 추천 (0) | 2024.02.19 |
| 래미안 원펜타스 일반분양 분양가 평면도 알아보기 (0) | 2024.02.18 |
